Ruime Holiday Suite (2p) op het 5e verdiep met rustig zonneterras!
Profiteer bij deze investering van de voordelen van de maritieme omgeving. Dankzij de vaste contracten die dit hotel heeft met verschillende havenbedrijven, bent u zeker dat er steeds een vaste bezetting is binnen het project en in uw business suite. Bovendien wordt uw Holiday Suite uitgebaat door een professioneel team, zodat u zich van niks hoeft aan te trekken. U kan steeds zelf genieten van uw suite wanneer u dat wenst, via een vooraf afgesproken formule.
De Holiday Suites in Zeebrugge situeren zich midden in de maritieme omgeving van Zeebrugge. Dit is de perfecte verblijfplaats voor de vele expats die in de haven werken. De vaste contracten met de verschillende internationale bedrijven zorgen ervoor dat er steeds een vaste bezetting is. De suites bevinden zich bovendien op wandelafstand van het centrum. Het is ook de perfecte uitvalbasis om de nabijgelegen badsteden Blankenberge en Knokke-Heist te bezoeken. De tramhalte bevindt zich op 100m en deze brengt u in 10 minuten naar beide badsteden.
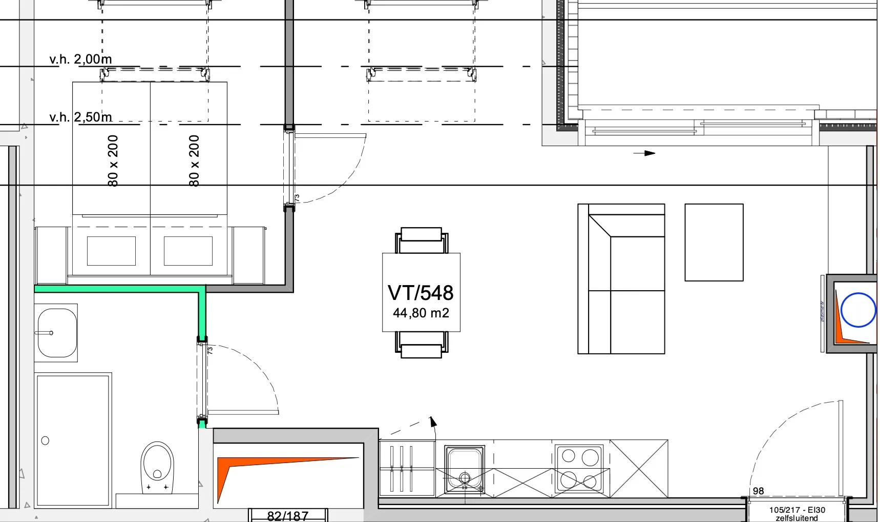
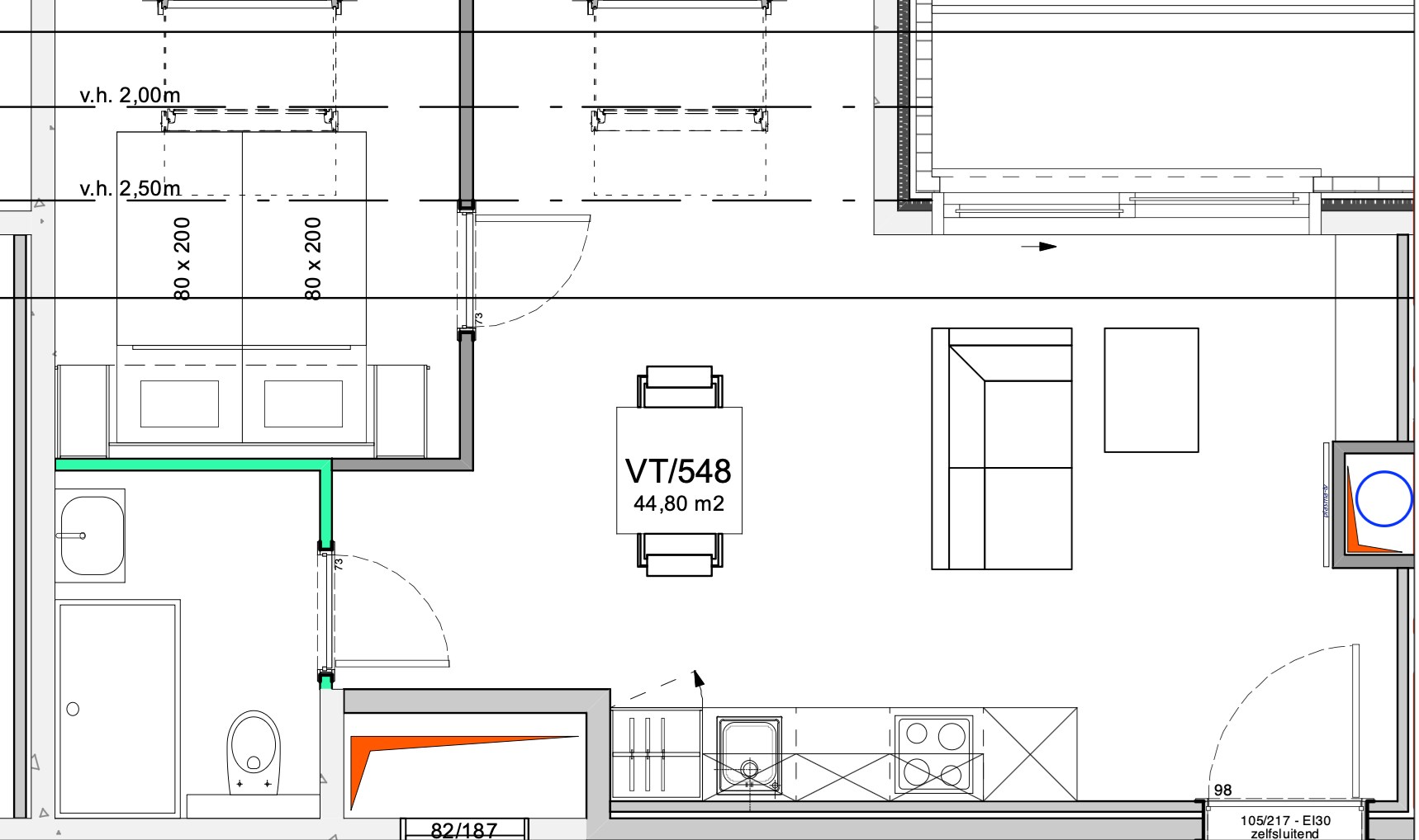
Deze suite is 45m2 groot en beschikt over een slaapkamers met een dubbelbed, een badkamer uitgerust met een douche en een ruime leefruimte met open keuken. De kamer is verder ook uitgerust met wifi, een flatscreen tv en airconditioning. Het beschikt over een rustig zonneterras waar er genoten kan worden van een lekker ontbijt. Het complex zelf beschikt verder over verschillende faciliteiten. Zo is er voldoende parkeermogelijkheid, een buiten- en binnenzwembad, sauna, fitness, een restaurant en een bar. Ook zijn er verschillende vergaderzalen aanwezig. Geniet zonder zorgen van uw investering aan de Kust!
Deel dit pand
Wettelijke informatie
| EPC certificaat nr: | NVT |
| Stedenb. vergunning: | Ja |
| Voorkooprecht: | Neen |
| Verkavelingsvergunning van toepassing: | Neen |
| Stedenb. bestemming: | Andere |
| Dagvaarding: | Geen rechterlijke herstelmaatregel of bestuurlijke maatregel opgelegd |
| Overstromingsgevoelig: | Effectief overstromingsgevoelig gebied |
| Overstromingsgebied: | Geen afgebakende zones |
| Overstromingskans perceel (P-score): | |
| Overstromingskans gebouw (G-score): | |
| Erfgoed: | Geen beschermd erfgoed |
Effectief overstromingsgevoelig gebied